проект дома с мансардой - TWO 88

TWO 88

дом с мансардой 8 на 8

Двухэтажный мансардный дом с крытой террасой для ценителей загородного отдыха. Продуманная планировка делает этот дом максимально вместительным, места хватит для всей семьи. 

В центре первого этажа располагается объединённая с кухней гостиная. Отсюда сразу можно попасть на крытую террасу, где летние ужины будут, определенно, вкуснее. Оставшееся пространство первого этажа отведено для спальной комнаты, прихожей и санузла. 

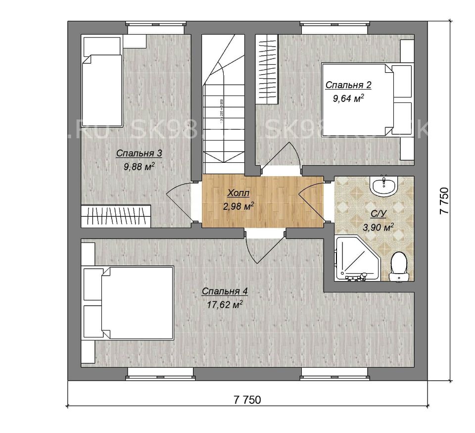
Второй этаж - место для отдыха и уединения. Три просторные спальни и ванная. 

Снаружи дом выглядит просто и аккуратно и отлично впишется в любой ландшафт. А классический фасад строения олицетворяет семейное тепло и уют.

140 м²

Строительная площадь

Площадь дома с учетом террас, балконов и навесов.

120 м²

Жилая площадь

Площадь дома по внешним стенам каждого этажа, без учета площадей террас, балконов и навесов. 

88 м²

Полезная площадь

Площадь дома внутренняя, по полам всех этажей. Без учета второго света, проема лестницы, толщины стен, балконов, террас и навесов.

Планировка

дома

Фасады

дома

Видео

обзор дома

Стоимость

строительства

от 8.400.000 руб.

Каркасный дом

+ фундамент монолитная железобетонная плита.

+ каркас дома камерной сушки, строганный.

+ утепление дома 200 мм.

+ ветрозащитная плита ISOPLAAT 25 мм.

+ мембраны с проклейкой швов.

+ кровельное покрытие гибкая черепица.

+ окна с мультифункциональными стеклами.

+ Фасад DECOVER (фибросайдинг).

+ устройство карнизов и свесов кровли.

+ водосточная система.

+ настил террас и балконов.

от 8.640.000 руб.

Коттедж из газобетона

+ фундамент монолитная железобетонная плита.

+ газобетон с армированием кладки.

+ междуэтажное перекрытие железобетонное.

+ оконные и дверные проемы усилены монолитными перемычками.

+ утепление  кровли 200 мм. 

+ кровельное покрытие гибкая черепица.

+ окна с мультифункциональными стеклами.

+ фасад, штукатурка с добавление колера - в цвет.

+ устройство карнизов и свесов кровли.

+ водосточная система.

+ настил террас и балконов.

Хотите внести правки в проект?

Давайте обсудим