проект дома - TWO 125

TWO 116

проект дома менее 200м²

Стиль БАРНХАУС - это достаточно новое направление в архитектуре Санкт-Петербурга. Но уже успел завоевать популярность среди Россиян! Эти дома в минималистичном современном стиле, отличаются своей простотой и лаконичностью. Обилие свето-прозрачных конструкций дарит дому лёгкость и чистоту!

195 м²

Строительная площадь

Площадь дома с учетом балконов и навесов.

143 м²

Жилая площадь

Площадь дома по внешним стенам каждого этажа, без учета площадей балконов и навесов. 

116 м²

Полезная площадь

Площадь дома внутренняя, по полам всех этажей. Без учета второго света, проема лестницы, толщины стен, балконов и навесов.

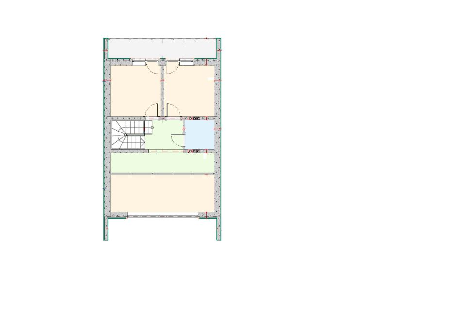
Планировка

дома

Фасады

дома

Стоимость

строительства

от 6 435 000руб.

Каркасный дом

+ фундамент монолитная железобетонная плита.

+ каркас дома камерной сушки, строганный.

+ утепление дома 200 мм.

+ ветрозащитная плита ISOPLAAT 25 мм.

+ мембраны с проклейкой швов.

+ кровельное покрытие гибкая черепица.

+ окна с мультифункциональными стеклами.

+ Фасад DECOVER (фибросайдинг).

+ устройство карнизов и свесов кровли.

+ водосточная система.

+ настил террас и балконов.

от 7 150 000 руб.

Дом из газобетона
+ фундамент монолитная железобетонная плита.

+ газобетон с армированием кладки.

+ междуэтажное перекрытие железобетонное.

+ оконные и дверные проемы усилены монолитными перемычками.

+ утепление кровли 200 мм.

+ кровельное покрытие гибкая черепица.

+ окна с мультифункциональными стеклами.

+ фасад, штукатурка с добавление колера - в цвет.

+ устройство карнизов и свесов кровли.

+ водосточная система.

+ настил террас и балконов.

Хотите внести правки в проект?

Давайте обсудим