проект дома - TWO 125

TWO 125

проект дома более 200м²

Планируете строительство собственного загородного дома, но не знаете какой план выбрать и как разместить все нужные комнаты? Предлагаем обратить внимание на практичный и удобный двухэтажный дом. Это отличный способ сэкономить площадь на участке и использовать её под сад, беседку, площадку или бассейн!

137 м²

Строительная площадь

Площадь дома с учетом балконов и навесов.

103 м²

Жилая площадь

Площадь дома по внешним стенам каждого этажа, без учета площадей балконов и навесов. 

135 м²

Полезная площадь

Площадь дома внутренняя, по полам всех этажей. Без учета второго света, проема лестницы, толщины стен, балконов и навесов.

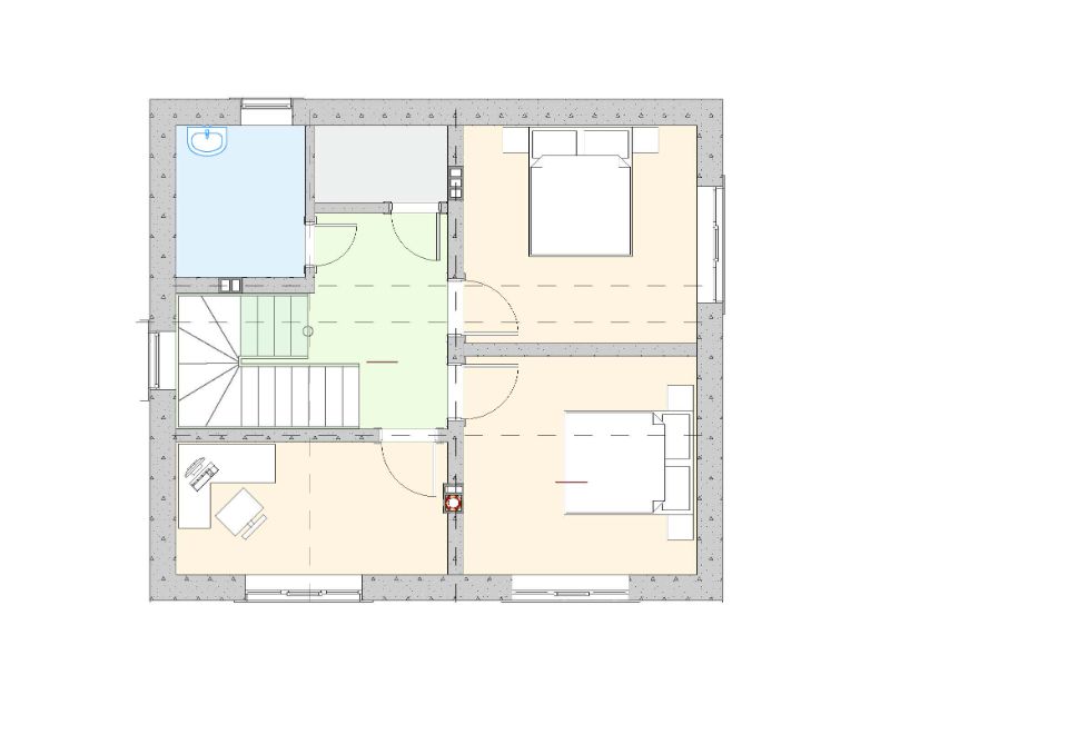
Планировка

дома

Фасады

дома

Видео

обзор дома

Стоимость

строительства

от 6 930 000 руб.

Каркасный дом

+ фундамент монолитная железобетонная плита.

+ каркас дома камерной сушки, строганный.

+ утепление дома 200 мм. 

+ ветрозащитная плита ISOPLAAT 25 мм. 

+ мембраны с проклейкой швов.

+ кровельное покрытие гибкая черепица.

+ окна с мультифункциональными стеклами.

+ Фасад DECOVER (фибросайдинг).

+ устройство карнизов и свесов кровли.

+ водосточная система.

+ настил террас и балконов.

от 7 030 000 руб.

Коттедж из газобетона

+ фундамент монолитная железобетонная плита.

+ газобетон с армированием кладки.

+ междуэтажное перекрытие железобетонное.

+ оконные и дверные проемы усилены монолитными перемычками.

+ утепление  кровли 200 мм. 

+ кровельное покрытие гибкая черепица.

+ окна с мультифункциональными стеклами.

+ фасад, штукатурка с добавление колера - в цвет.

+ устройство карнизов и свесов кровли.

+ водосточная система.

+ настил террас и балконов.

Хотите внести правки в проект?

Давайте обсудим