проект дома с мансардой - TWO 121

TWO 121

проект дома до 200 м²

Двухэтажный дом с оригинальным балконом, окнами с золотыми шпроссами. Идеально подходит для загородной жизни! Планировка даёт возможность разместиться большой семье и гостям.

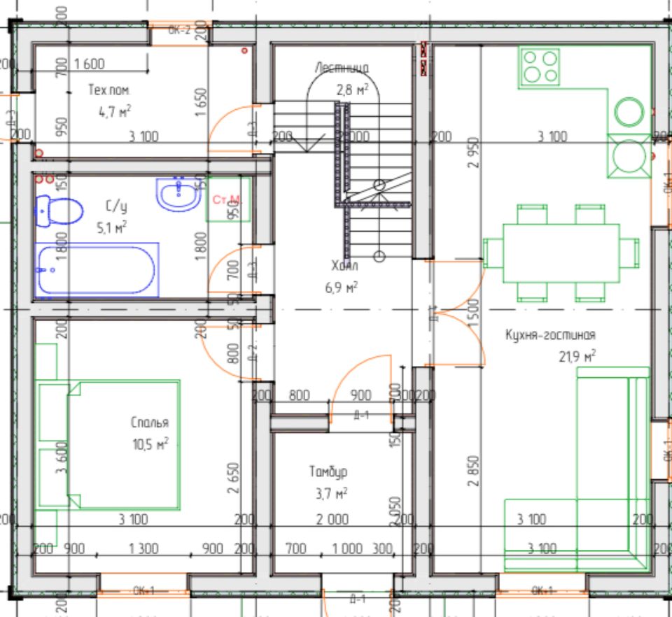
В центре первого этажа располагается кухня-гостиная. 

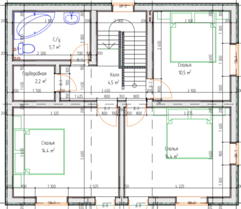
Четыре спальни дают возможность разместиться всем членам семьи и гостям!

Оригинальный балкон будет выгодно выделять дом, на фоне других домов. 

Второй этаж даст возможность детям отдохнуть в жаркую погоду. 

Снаружи дом будет облицован Decover, кроля металлическая черепица.

153 м²

Строительная площадь

Площадь дома с учетом балконов и навесов.

120 м²

Жилая площадь

Площадь дома по внешним стенам каждого этажа, без учета площадей балконов и навесов. 

100 м²

Полезная площадь

Площадь дома внутренняя, по полам всех этажей. Без учета второго света, проема лестницы, толщины стен, балконов и навесов.

Планировка

дома

Фасады

дома

Видео

обзор дома

Стоимость

строительства

от 5 400 000 руб.

Каркасный дом

+ фундамент монолитная железобетонная плита.

+ каркас дома камерной сушки, строганный.

+ утепление дома 200 мм. 

+ ветрозащитная плита ISOPLAAT 25 мм. 

+ мембраны с проклейкой швов.

+ кровельное покрытие гибкая черепица.

+ окна с мультифункциональными стеклами.

+ Фасад DECOVER (фибросайдинг).

+ устройство карнизов и свесов кровли.

+ водосточная система.

+ настил террас и балконов.

от 5 999 000 руб.

Коттедж из газобетона

+ фундамент монолитная железобетонная плита.

+ газобетон с армированием кладки.

+ междуэтажное перекрытие железобетонное.

+ оконные и дверные проемы усилены монолитными перемычками.

+ утепление  кровли 200 мм. 

+ кровельное покрытие гибкая черепица.

+ окна с мультифункциональными стеклами.

+ фасад, штукатурка с добавление колера - в цвет.

+ устройство карнизов и свесов кровли.

+ водосточная система.

+ настил террас и балконов.

Хотите внести правки в проект?

Давайте обсудим