проект дома с мансардой - TWO 148

TWO 148

проект дома с мансардой до 200 м²

Двухэтажный дом с мансардой, в классическом скандинавском исполнении. Это замечательный загородный дом, для большой семьи и их дорогих гостей. 

Попадая во внутрь, мы почти сразу оказываемся в просторной кухне-гостиной, где особое внимание уделено хозяйке и ее любимому пространству. Из гостиной мы почти сразу можем оказаться в крытой, но при этом обзорной террасе. Где с радостью можно проводить тёплые вечера в кругу родных и близких. Также, на первом этаже располагается котельная, уютная гостевая спальня и комната личной гигиены. 

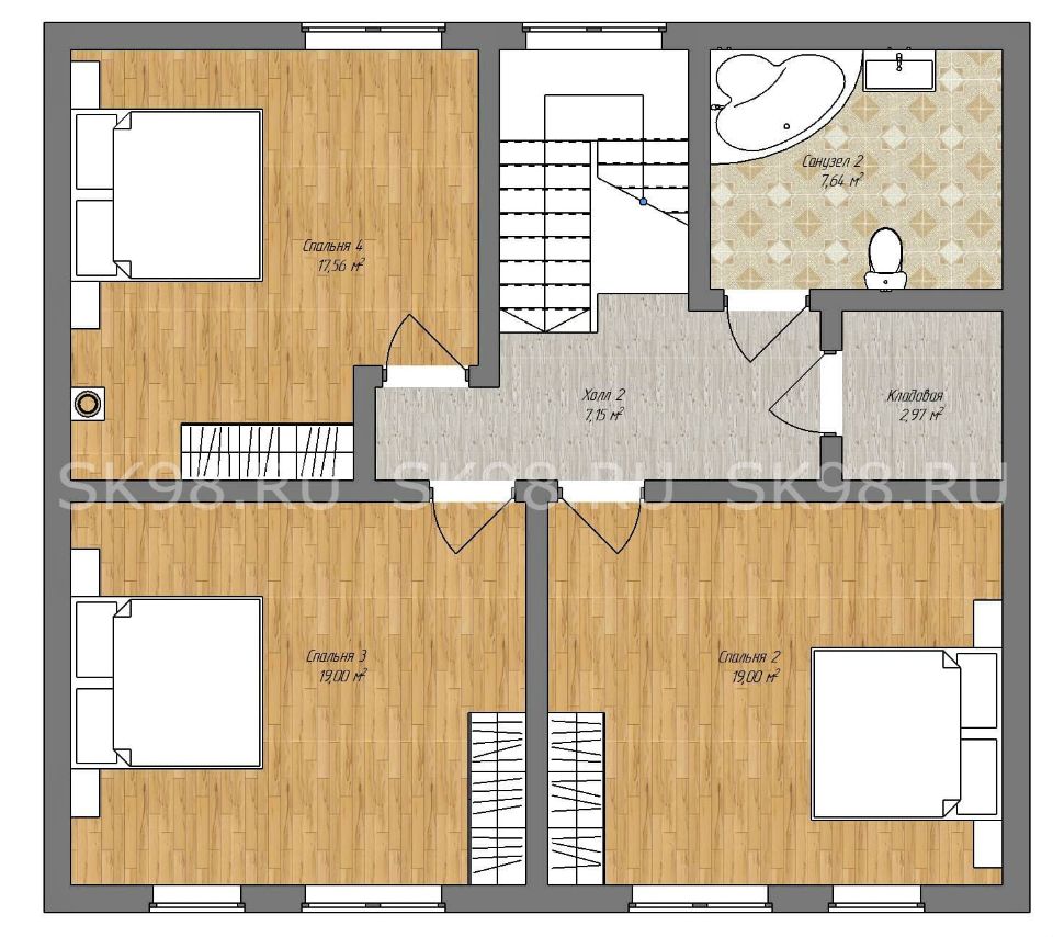
Поднявшись на второй этаж, мы попадаем в главное место отдыха состоящее из трёх спален, одна из которых хозяйская . Имеется большая ванная комната и кладовая. 

Данная архитектура и планировка, предусматривает максимально удобным пребывание большой семьи, и как говорилось ранее, их дорогих друзей и близких.

224 м²

Строительная площадь

Площадь дома с учетом террас, балконов и навесов.

187 м²

Жилая площадь

Площадь дома по внешним стенам каждого этажа, без учета площадей террас, балконов и навесов. 

148 м²

Полезная площадь

Площадь дома внутренняя, по полам всех этажей. Без учета второго света, проема лестницы, толщины стен, балконов, террас и навесов.

Планировка

дома

Фасады

дома

Видео

обзор дома

Стоимость

строительства

от 8 415 000 руб.

Каркасный дом

+ фундамент монолитная железобетонная плита.

+ каркас дома камерной сушки, строганный.

+ утепление дома 200 мм. 

+ ветрозащитная плита ISOPLAAT 25 мм. 

+ мембраны с проклейкой швов.

+ кровельное покрытие гибкая черепица.

+ окна с мультифункциональными стеклами.

+ Фасад DECOVER (фибросайдинг).

+ устройство карнизов и свесов кровли.

+ водосточная система.

+ настил террас и балконов.

от 9 350 000 руб.

Коттедж из газобетона

+ фундамент монолитная железобетонная плита.

+ газобетон с армированием кладки.

+ междуэтажное перекрытие железобетонное.

+ оконные и дверные проемы усилены монолитными перемычками.

+ утепление  кровли 200 мм. 

+ кровельное покрытие гибкая черепица.

+ окна с мультифункциональными стеклами.

+ фасад, штукатурка с добавление колера - в цвет.

+ устройство карнизов и свесов кровли.

+ водосточная система.

+ настил террас и балконов.

Хотите внести правки в проект?

Давайте обсудим