проект дома - ONE 98

ONE 98

проект дома до 200 м²

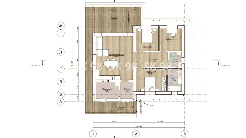
Одноэтажный дом с площадью 98 м2 включает в себя всё что нужно для семьи. Кухня-гостиная 32м2, две довольно просторные спальни по 11 м2, в хозяйской спальне отдельный санузел. Но изюминкой данного проекта является кабинет. Даже в домах с большей площадью он не всегда есть!

136 м²

Строительная площадь

Площадь дома с учетом балконов и навесов.

98 м²

Жилая площадь

Площадь дома по внешним стенам каждого этажа, без учета площадей балконов и навесов.

Планировка

дома

Фасады

дома

Видео

обзор дома

Стоимость

строительства

от 6.800.000 руб.

Каркасный дом

+ фундамент монолитная железобетонная плита.

+ каркас дома камерной сушки, строганный.

+ утепление дома 200 мм. 

+ ветрозащитная плита ISOPLAAT 25 мм. 

+ мембраны с проклейкой швов.

+ кровельное покрытие гибкая черепица.

+ окна с мультифункциональными стеклами.

+ Фасад DECOVER (фибросайдинг).

+ устройство карнизов и свесов кровли.

+ водосточная система.

+ настил террас и балконов.

от 7.056.000 руб.

Коттедж из газобетона

+ фундамент монолитная железобетонная плита.

+ газобетон с армированием кладки.

+ междуэтажное перекрытие железобетонное.

+ оконные и дверные проемы усилены монолитными перемычками.

+ утепление  кровли 200 мм. 

+ кровельное покрытие гибкая черепица.

+ окна с мультифункциональными стеклами.

+ фасад, штукатурка с добавление колера - в цвет.

+ устройство карнизов и свесов кровли.

+ водосточная система.

+ настил террас и балконов.

Хотите внести правки в проект?

Давайте обсудим