проект дома с лофтом - LOFT 87

LOFT 87

проект дома с лофтом

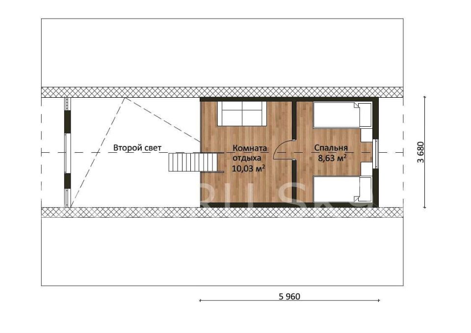
Оригинальный дом в стиле лофт для молодой семьи с панорамным остеклением и высокими потолками. Большую часть пространства первого этажа дома занимает просторная кухня-гостиная с потолком, уходящим под кровлю. Две спальни на первом этаже и одна на втором - уютные комнаты 10, 9 и 5 кв.м. Также на нижнем этаже дома есть компактная сауна, попасть в которую можно сразу из ванной комнаты. 

Верхнее пространство дома располагает к уединению и творчеству. Комната отдыха с видом на природу не оставит равнодушным ни одного ценителя спокойствия и тишины. Вокруг дома можно добавить террасу из экологически - чистых материалов для комфортного времяпрепровождения на свежем воздухе. Она дополнит оригинальность лофта как внутри, так и снаружи.

181 м²

Строительная площадь

Площадь дома с учетом террас, балконов и навесов.

133 м²

Жилая площадь

Площадь дома по внешним стенам каждого этажа, без учета площадей террас, балконов и навесов. 

87 м²

Полезная площадь

Площадь дома внутренняя, по полам всех этажей. Без учета второго света, проема лестницы, толщины стен, балконов, террас и навесов.

Планировка

дома

Фасады

дома

Видео

обзор дома

Стоимость

строительства

от 5 985 000 руб.

Каркасный дом

+ фундамент монолитная железобетонная плита.

+ каркас дома камерной сушки, строганный.

+ утепление дома 200 мм. 

+ ветрозащитная плита ISOPLAAT 25 мм. 

+ мембраны с проклейкой швов.

+ кровельное покрытие гибкая черепица.

+ окна с мультифункциональными стеклами.

+ фасад, имитация бруса с покраской в заводских условиях.

+ устройство карнизов и свесов кровли.

+ водосточная система.

+ настил террас и балконов.

от 6 650 000 руб.

Коттедж из газобетона

+ фундамент монолитная железобетонная плита.

+ газобетон с армированием кладки.

+ междуэтажное перекрытие железобетонное.

+ оконные и дверные проемы усилены монолитными перемычками.

+ утепление  кровли 200 мм. 

+ кровельное покрытие гибкая черепица.

+ окна с мультифункциональными стеклами.

+ фасад, штукатурка с добавление колера - в цвет.

+ устройство карнизов и свесов кровли.

+ водосточная система.

+ настил террас и балконов.

Хотите внести правки в проект?

Давайте обсудим